Ga naar de inhoud

Woningaanbod

Ster met streepjes dikker | Thoma Post Makelaars

Van Noordtkade 1 E

€ 525.000,-
Kosten koper
Aantal kamers icoon | Makelaar Amsterdam
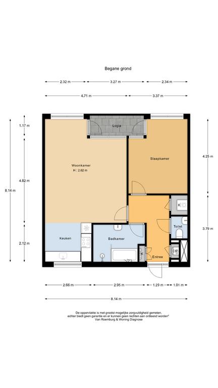
Aantal kamers: 2
Woonoppervlakte icoon | Makelaar Amsterdam
Woonoppervlakte: 62
Bouwjaar icoon | Makelaar Amsterdam
Bouwjaar: 2007

Omschrijving

Sfeervol, licht en goed ingedeeld appartement, mét eigen berging en parkeerplaats op een TOP-locatie in Amsterdam!

KENMERKEN
Bouwjaar: 2007
Eigen berging
Parkeerplaats in de ondergelegen parkeerkelder is apart te koop
Woonoppervlakte: 62 m²
Kozijnen met dubbele beglazing
Verwarming via eigen CV-ketel (2024)
Energielabel: A
Servicekosten: € 157,76,- per maand

WONEN & KOKEN
De woon-eetkamer is, dankzij de grote raampartij, heerlijk licht en staat in open verbinding met de gezellige keuken die is voorzien van inbouwapparatuur.
Door de gehele woning ligt een geïsoleerde laminaatvloer, wat zorgt voor een verzorgd en comfortabel geheel.

SLAPEN & BADEN
Aan de rustige tuinzijde ligt de ruime slaapkamer, met een deur naar het gezellige terras. Hoe fijn is het om hier wakker te worden!
De badkamer beschikt over een ligbad, inloopdouche en wastafel, en is toegankelijk vanuit de hal.
Het toilet is separaat en de inpandige berging is perfect voor de aansluiting van de wasmachine en wasdroger.

BUITENRUIMTE
Zowel vanuit de woonkamer als de slaapkamer is er toegang tot het terras (ca. 4 m²). Het terras ligt vrij en privé, waardoor dit de ideale plek is om van de zon te genieten.

BERGING & PARKEREN
Onder het appartement bevindt zich de parkeerkelder met:
– een gemeenschappelijke fietsenberging
– een eigen berging
– een eigen parkeerplaats, deze wordt apart aangeboden voor € 55.000,- kk.

LOCATIE
Het appartement ligt in een waterrijke omgeving aan de Van Noordtkade. Een rustige en groene locatie, op slechts 500 meter van het centrum.
Voor dagelijkse boodschappen kun je terecht in de Spaarndammerstraat met supermarkten, speciaalzaken, cafés en restaurants.

Het Westerpark met de Westergasfabriek ligt op een paar minuten lopen en biedt een uniek aanbod van cultuur, horeca en sportmogelijkheden. Hardlopers kunnen hier hun hart ophalen.

De Jordaan en de Haarlemmerdijk zijn binnen enkele fietsminuten bereikbaar. Binnen 10 minuten fietsen sta je op Amsterdam CS. Openbaar vervoer en de pont (Pontsteiger) liggen vrijwel voor de deur. Met de auto rij je binnen 5 minuten de ring A10 op.

WOONOPPERVLAKTE
De woonoppervlakte bedraagt 62 m² (exclusief terras en berging). De woning is ingemeten volgens de NEN2580-norm. Het meetrapport is beschikbaar.

VVE
De VvE bestaat uit meerdere leden. De maandelijkse servicekosten bedragen € 212,-, inclusief parkeerplaats. Het beheer is uitbesteed aan NEWOMIJ.
De VvE werkt met een vijfjarig MeerjarenOnderhoudsPlan (MJOP). In de afgelopen jaren zijn er meerdere werkzaamheden uitgevoerd.

EIGENDOMSSITUATIE
De woning is gelegen op erfpachtgrond van de gemeente Amsterdam. De canon is afgekocht tot 15 november 2055. Daarna geldt een jaarlijkse canon, reeds vastgelegd in de erfpachtakte.

BOUWJAAR
Het pand is gebouwd in 2007.

BEREIKBAARHEID & PARKEREN
Voor de deur zijn voldoende parkeerplaatsen en er zijn meerdere elektrische laadpalen in de buurt. Let op: er worden géén parkeervergunningen meer verstrekt. Hoe fijn is het dan om te kunnen beschikken over een eigen parkeerplek in de ondergelegen parkeerkelder! Ook het openbaar vervoer stopt praktisch voor de deur.

OPLEVERING
De oplevering van dit goed ingedeelde appartement vindt plaats in overleg.

Disclaimer
Deze informatie is zorgvuldig samengesteld. Er wordt geen enkele aansprakelijkheid aanvaard voor eventuele onvolledigheden, onjuistheden of de gevolgen daarvan. Alle maten en oppervlakten zijn indicatief.

………………….

Charming, bright and well-laid-out apartment, complete with private storage and parking space, in a prime location in Amsterdam!

KEY FEATURES
Year of construction: 2007
Private storage room
Living area: 62 m²
Double-glazed windows
Heating via private central heating boiler (2024)
Energy label: A
Service charges: € 157,76 per month

LIVING & COOKING
The open-plan living and dining room is wonderfully bright thanks to the large windows and connects seamlessly to the inviting kitchen, fitted with built-in appliances.
A sound-insulated laminate floor runs throughout the apartment, creating a neat and comfortable finish.

SLEEPING & BATHING
At the quiet garden side lies the spacious bedroom, with direct access to the charming terrace – a delightful spot to wake up to.
The bathroom includes a bathtub, walk-in shower and washbasin, and is accessed from the hall.

There is a separate WC, and the internal storage room conveniently houses the washing machine and dryer connections.

OUTDOOR SPACE
Both the living room and bedroom open onto the terrace (approx. 4 m²). Set in a private position, it is the ideal spot to enjoy the sun.

STORAGE & PARKING
The underground car park provides:
a communal bicycle storage area
a private storage room
a private parking space is separately for sale, € 55.000 cc

LOCATION
This apartment is situated in a waterside setting on Van Noordtkade – a peaceful and green location, yet only 500 metres from the city centre.
For daily shopping, the Spaarndammerstraat offers supermarkets, speciality shops, cafés and restaurants.

The Westerpark with the Westergasfabriek complex is just a few minutes’ walk away, offering a unique range of cultural, culinary and sports facilities – a true haven for runners and outdoor enthusiasts.
The Jordaan and Haarlemmerdijk are just a short cycle away, and Amsterdam Central Station can be reached within 10 minutes by bike. Public transport and the ferry (Pontsteiger) are practically on the doorstep, and by car you can access the A10 ring road within five minutes.

LIVING AREA
The living area measures 62 m² (excluding terrace and storage). The property has been measured in accordance with NEN2580 standards. The measurement report is available.

OWNERS’ ASSOCIATION (VvE)
The VvE consists of multiple members. Monthly service charges are € 212, including the parking space. Management is outsourced to NEWOMIJ.
The VvE operates under a five-year maintenance plan (MJOP), and several works have been carried out in recent years.

TENURE
The apartment is located on leasehold land owned by the Municipality of Amsterdam. The ground rent has been paid off until 15 November 2055. Thereafter, a perpetual annual canon applies, already recorded in the leasehold deed.

YEAR OF CONSTRUCTION
The building was completed in 2007.

ACCESSIBILITY & PARKING
There are sufficient parking spaces directly in front of the building, as well as several electric charging stations nearby. Please note: parking permits are no longer being issued.
How convenient then to have the possibility of your own parking space in the underground car park! Public transport also stops virtually at the front door.

COMPLETION
Handover of this well-designed apartment will take place by mutual agreement.

Disclaimer
This information has been compiled with care. No liability is accepted for any inaccuracies, omissions or consequences thereof. All stated measurements and surfaces are indicative.

Eigenschappen

Overdracht

Prijs:

€ 525.000,-
Kosten koper

Status:

Verkocht

Servicekosten:

€ € 157,-
Bouw

Type gebouw:

Appartement

Bouwjaar:

2007
Oppervlakte & inhoud

Woonoppervlakte:

62

Inhoud:

164
Indeling

Aantal kamers:

2

Slaapkamers:

1

Plan een bezichtiging

Bij sommige woningen is een optie tot direct zelf inplannen via de knop ‘Plan afspraak’. Anders kun je hier een bezichtiging aanvragen en nemen wij zo snel mogelijk contact op.

Vind sneller jouw nieuwe huis

Maak kennis met Copaan, de slimme zoektool voor koopwoningen.

Vul al je woonwensen in, van harde eis tot ‘dat zou leuk zijn’ en Copaan vindt de best matchende buurten & woningen voor je